Beskrivelse af boligen

Charmerende landejendom med moderne komfort og naturskøn beliggenhed – mellem Vordingborg og Lundby

I det idylliske sydsjællandske landskab – mellem Vordingborg og Lundby – finder du denne skønne og velholdte landejendom med en fantastisk udsigt over åbne marker. Her får du masser af plads, privatliv og natur – samtidig med at ejendommen er opdateret med moderne komfort som varmepumpe, termovinduer og god isolering.

Ejendommen er oprindeligt opført i 1861 og står med sin klassiske sjæl intakt – bl.a. med pudset murværk, delvist bindingsværk og et smukt stråtag i god stand. Boligen rummer hele 270 m² og suppleres af gode udhuse, værksted og et skønt gæsteanneks.

Boligens indretning:

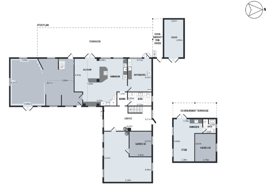
I stueetagen træder du ind i en rummelig hall med trappe til 1. sal. Herfra føres du videre til boligens hjerte: et stort og lyst køkken/alrum med masser af skabs- og bordplads samt store vinduer mod vest, der giver et fantastisk kig over haven og markerne. Køkkenet har direkte adgang til bryggers med vaskefaciliteter, fryser og den energieffektive luft-til-vand varmepumpe (installeret 2022).

Stueetagen byder desuden på:

Stor og hyggelig opholdsstue med flot bindingsværk.

Stort soveværelse med tilhørende mindre værelse – perfekt til børn eller kontor

Nydeligt flisebadeværelse med bruseniche



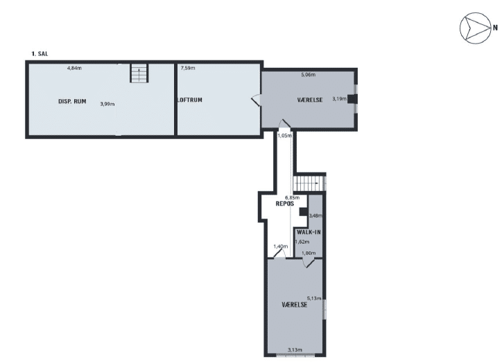
1. salen:

Via trappen fra hallen kommer du til en lys repos med adgang til:

Stort soveværelse med walk-in skab
Yderligere et stort værelse med adgang til loftrum

Fra trappen i stuen er der adgang til to disponible loftrum, som kan udnyttes til f.eks. opbevaring eller udvidelse af boligarealet

Udearealer og anneks:

Grunden på hele 5.789 m² er et sandt fristed for både store og små. Den nyanlagte græsplæne, de mange frugttræer og små hyggelige oaser i haven gør det let at finde ro eller legeplads.

I bunden af haven ligger et charmerende anneks på ca. 25 m² – perfekt som gæstehus, teenageafdeling eller udlejning. Annekset indeholder:

Stue og værelse
The-køkken
Badeværelse med bruseniche

Derudover finder du:

God parkeringsplads med plads til flere biler
Brændeskur, haveskur og udhus

Lille skovområde – ideel til børns leg og hulebygning

Energiforhold og varme:
Energimærke C før installation af varmepumpe
Luft-til-vand varmepumpe fra 2022 – energieffektiv og moderne løsning
To brændeovne som hyggelig og supplerende varmekilde

Et hjem med historie og fremtid

Denne ejendom kombinerer klassisk landejendomscharme med moderne bekvemmeligheder og en beliggenhed, der giver både fred, udsigt og plads til hele familien – både inde og ude.

Kontakt sælger

Katrine Frydensbjerg

Log ind for at kontakte sælger

Bolig Annoncer
Diskrete annoncer