Beskrivelse af boligen

9000 5-vær andelsbolig, hus 124 kvm, boligydelse: 8872 kr, Klokkestabelen 30, 9000 Aalborg, andelsværdi 704.959 kr, 2 plan

Sjældent udbudt arkitekttegnet andelsbolig i det hyggelige og velfungerende bofællesskab “Bytoften” i det skønne og rolige Gl. Hasseris. Bytoften består af tre forskellige boligtyper, hvoraf dette hus er et af de store familiehuse på 124 kvm.

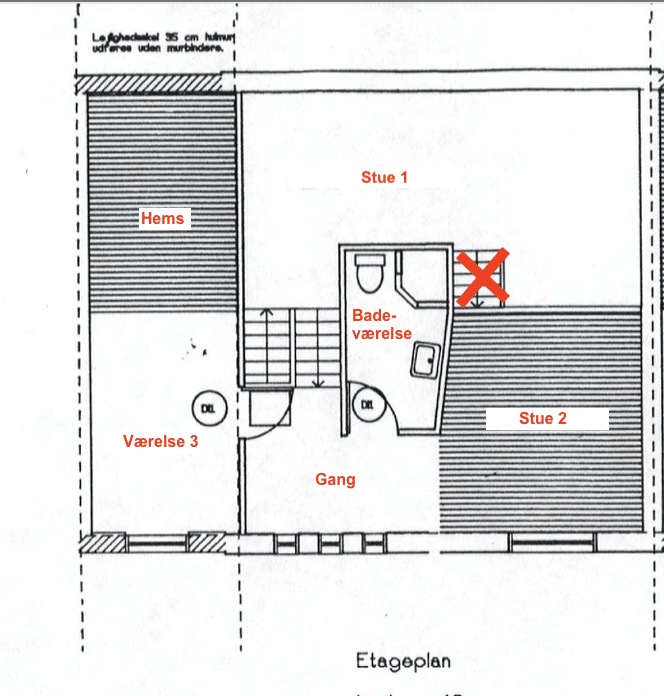
Rækkehuset fordeler sig på tre forskudte plan med loft til kip. Stueetagen byder på et stort køkken-alrum, et værelse, et toilet og entré. På det forskudte plan mellem stueetagen og førstesalen findes husets ene stue, hvortil der er adgang både fra entréen. Fra stuen er der desuden udgang til en terrasse, og i forlængelse af stuen findes husets andet værelse. På førstesalen findes husets tredje værelse indeholdende en stor hems, en gang med opbevaringsplads, badeværelset og yderligere en stue, hvorfra der er kig ned til stuen på det forskudte plan. I stuen på første sal er der et flot lysindfald fra det høje vinduesparti.

Prisen for andelen er: 704.959 kr + forbedringer
Fællesudgifter: 8872 kr + 1130 kr i aconto vand/varme

Bofællesskabet består af 17 huse og et dejligt fælleshus, som er omdrejningspunktet for mange aktiviteter blandt andet fællesspisning én gang om ugen, fredagsbar, filmklub og diverse fester. I fælleshuset findes desuden en vaskekælder, tørrerum, værksted og cykelparkering. Fælleshuset kan også benyttes til private arrangementer og på førstesalen findes et værelse med 3 senge til overnattende gæster.
På de udendørs fællesarealer findes en bålplads, hængekøjer, sandkasse, frugttræer og bærbuske, og bofællesskabet ligger tæt på grønne områder, gode stisystemer, institutioner, skoler, indkøbsmuligheder og offentlig transport. Der er desuden egen p-plads og planlagt installation af el-ladestandere.
Derudover afholdes årligt 6 arbejdsdage, hvor alle deltager.
Bytoften har professionel administration (Nordstjernens Ejendomsadministration) og følger en professionel 15-årig drifts- og vedligeholdelsesplan.

Skriv en besked til forperson Helene Billingsøe for fremvisning og yderligere informationer.

Kontakt sælger

Helene Billingsøe

Log ind for at kontakte sælger

Bolig Annoncer
Diskrete annoncer