Beskrivelse af boligen

En fuldmuret, arkitekttegnet og velindrettet villa i forskudt plan med en skøn solrig have og udsigt over Ørns og skov.
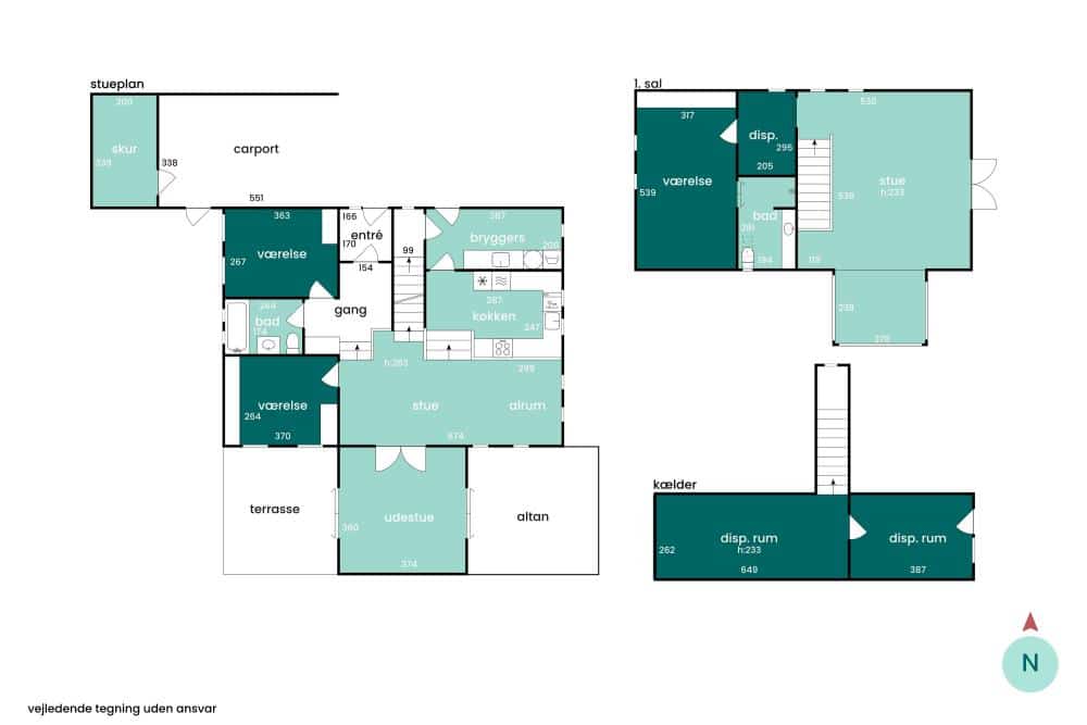
Villaen har stor stue med en fantastiske udsigt, tre værelser, to badeværelser, bryggers og en god tør kælder. Her er masser af indretningsmuligheder såvel som opmagasineringsplads.
Villaen ligger på en stille lukket, privat vej i Funder, hvor ikke er langt til dagligdagens gøremål eller smuk natur. Kun 100 meter til skov og ikke meget mere til legepladsen. Der er gå eller cyklesti til Funder-Kragelund Skole, den integrerede daginstitution og indkøbsmulighederne, som ligger alt sammen under halvanden kilometer fra hoveddøren.

Kontakt sælger

Steven Russell

Log ind for at kontakte sælger

Bolig Annoncer
Diskrete annoncer